Projekty konstrukcji
Projektowanie konstrukcji budowlanych
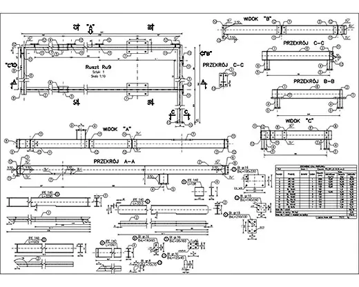
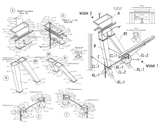
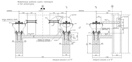
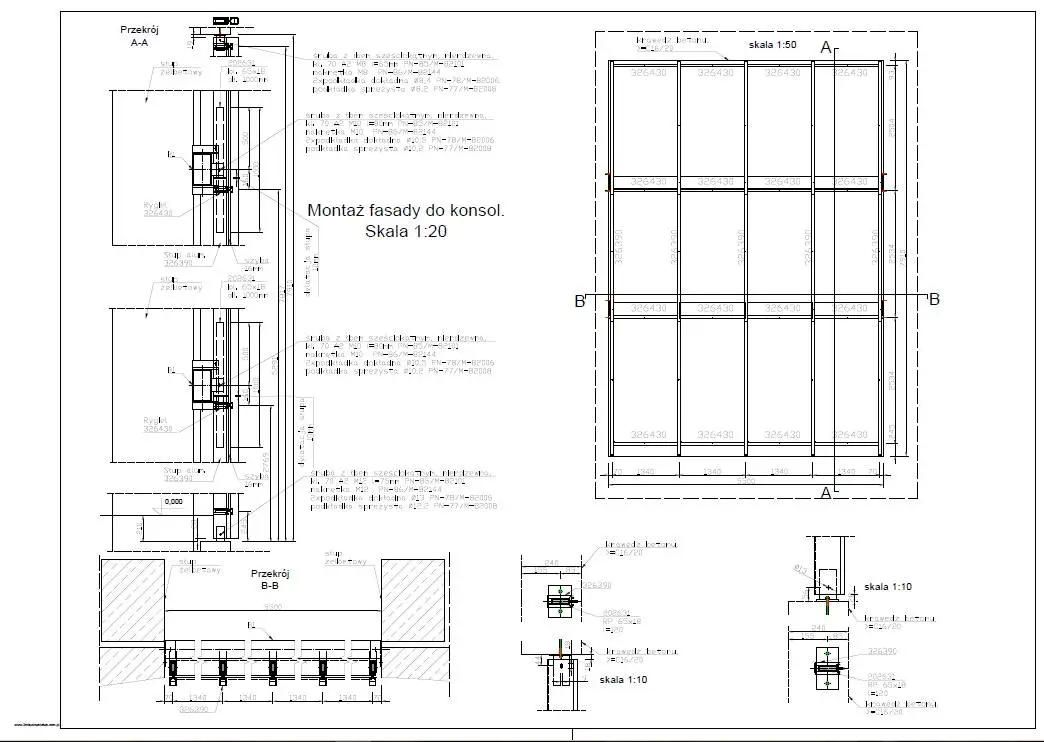
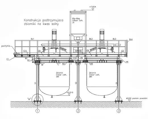
Jesteśmy dyplomowanymi projektantami konstrukcji budowlanych. Wykonujemy obliczenia statyczno – wytrzymałościowe konstrukcji budowlanych. Obliczenia takie pozwalają na ocenę bezpieczeństwa projektowanej konstrukcji. Projektujemy zarówno w oparciu o normy europejskie EN jak i polskie PN. Sprawdzamy także statykę istniejących konstrukcji. Obliczenia statyczno – wytrzymałościowe wykonujemy najczęściej w programie Autodesk Robot Structural Analysis
Professional. Jeśli potrzebujesz pomocy projektanta skontaktuj się z naszym biurem.


Projektowanie konstrukcji budowlanych
Na podstawie obliczeń można sprawdzić, czy konstrukcja ma wystarczającą wytrzymałość oraz czy spełniony jest stan graniczny użytkowania, to znaczy czy konstrukcja nie będzie uginać się nadmiernie i nie będzie podatna na drgania.
Poza typowymi obliczeniami statycznymi możemy również wykonać obliczenia dynamiczne (drgania własne i wzbudzone). Wykonujemy również obliczenia MES dla elementów konstrukcji budowlanych.
Copyright © 2026 by 2M
Tworzenie sklepów internetowych Wrocław